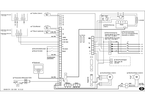
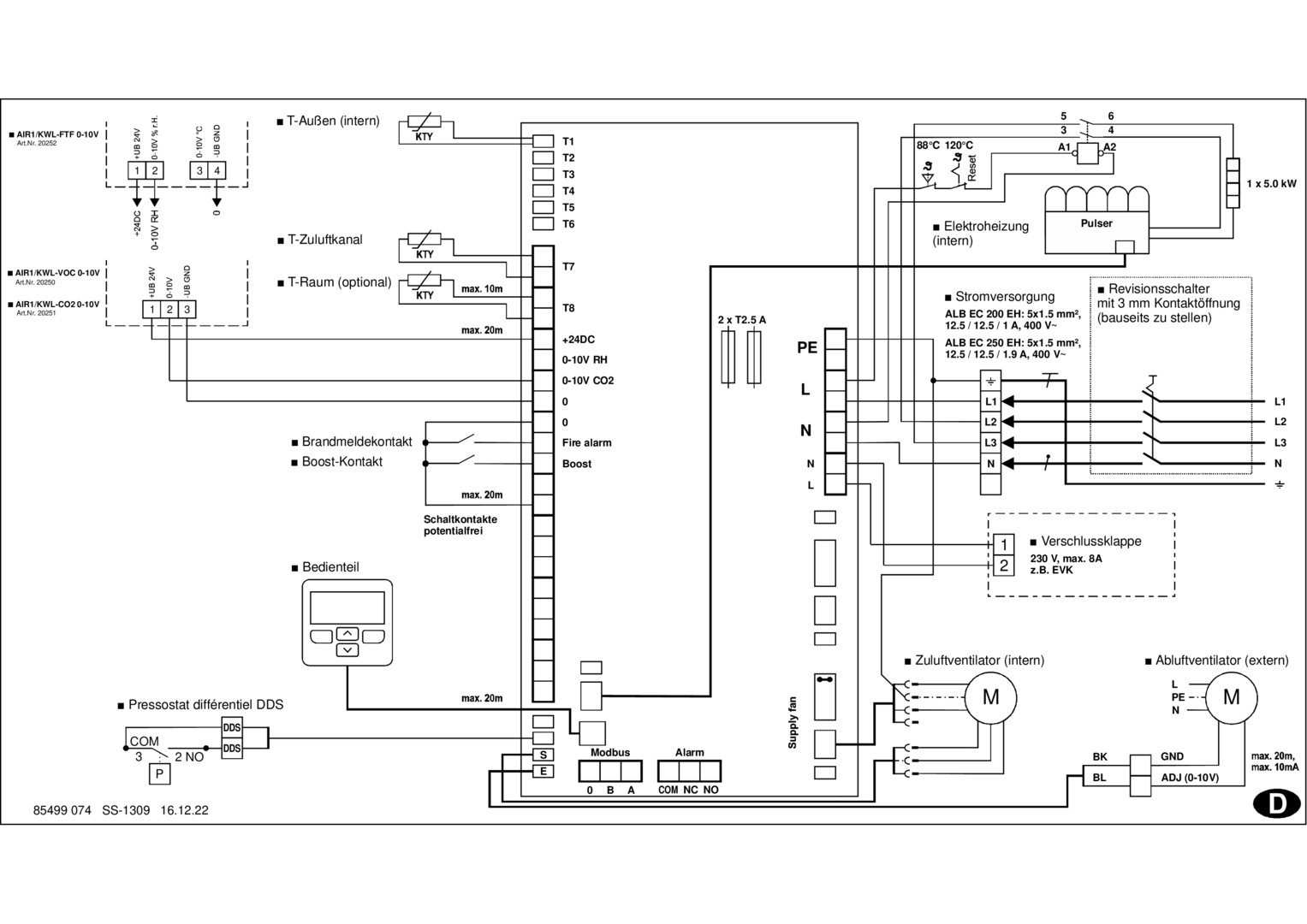
Helios ALB EC 250 EH Außenluft-Box mit E-Heizreg. Luftfilter, 3-PH, 400V
W846014
4010184068181
06818
auf Anfrage
je 1 STCK
keine Verfügbarkeitsinformationen
Funktionen
Verkaufsdaten
| Mindestbestellmenge | 1 STCK |
| Bestellschritt | 1 STCK |
Merkmale
| Produktklasse | Zusatzartikel |
| Internet Link | https://2hv.de/art06818-002 |